APPA PCG25B / Joli studio cabine - à 300m de la mer
Disponibilidad
Información
- Tipo de alojamiento :
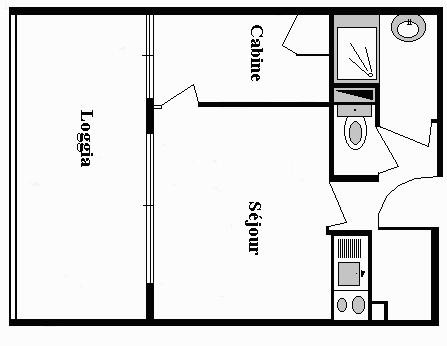
- Estudio
- Plano
- Número de piezas :
- T1
- Superficie :
- 22 m2
- Acceso para personas con movilidad reducida :
- No
- Animaux acceptés :
- Non
- Capacidad máximo :
- 4 personas
- Niveau :
- 3ème étage
Equipamientos y servicios
- Descripción de la casa :
- Muebles de jardín
- Aseo separado
- Baño con ducha
- Descripción del confort :
- Cafetera
- Frigorífico / congelador
- Ventilador
- Televisión
- Equipements :
- Lave linge privatif
- WIFI
- Four à micro-ondes
- Réfrigérateur
- WIFI
- Fer à repasser
- Aspirateur
- Informations Complémentaires :
- Ascenseur
- Véranda
- Equipamientos y Servicios :
Información del propietario
Agence Amarine
Chemin des Quilles
Les Marines de St Clair Bat A
BP 10303
34200
SETE
FICHE_INFO_SIMPLE_LIBELLE_DESTINATION
1 quai de la Dunette
Chemin des Quilles
34200
SETE
Coordenadas GPS
Latitud : 43.39629882186975
Longitud : 3.6627495288848873















































